На главную Контактная информация Карта сайта
        Проекты коттеджей :: Интернет-магазин Plans.ru :: Готовые проекты домов  
   
     
   
     
 
 
Предыдущий проект
Проект коттеджа 37-83 37-83

Проект кирпичного дома 37-83

Цена, руб. 45600 [?]
Следующий проект

Проект коттеджа 35-69

ФРОНТОН (франц . fronton), завершение (обычно треугольное) фасада здания, портика, колоннады, ограниченное двумя скатами крыши по бокам и карнизом у основания. Декоративные фронтоны украшают двери и окна зданий.



Фасады дома:

Изображение фасада 1 :: Проект коттеджа 37-83

Изображение фасада 2 :: Проект коттеджа 37-83

Изображение фасада 3 :: Проект коттеджа 37-83

Изображение фасада 4 :: Проект коттеджа 37-83









 
Фото проекта дома из кирпича 37-83

Общая площадь: 256.8 кв.м

Есть варианты: 274 м2, 380 м2, 492 м2
На DVD
"Проекты коттеджей с объемными моделями и планами N1/2017" присутствует:


Имеется 3D-модель дома в каталоге
Задать вопрос по проекту дома 37-83 Заказать проект коттеджа 37-83 Посмотреть зеркальный вариант проекта Фирмы для расчета смет

Наружные стеныпоризованный кирпич 510мм КИРПИЧ "ЛСР" *
Фундамент
Перекрытия
Кровлямансардная
Покрытие кровлиметаллочерепица Керамическая черепица TONDACH *
Наружная отделка
керамический кирпич 120мм, штукатурка, окраска, облицовка камнемДекоративный камень и кирпич "КРАСНЫЙ КАМЕНЬ"*
Цоколь
облицовка камнемДекоративный камень и кирпич "КРАСНЫЙ КАМЕНЬ"*
ЦенаНашли дешевле? 
АР+КР (архитектурные решения, конструктивные решения) [?] [Пример проекта]45600 руб. (есть зеркальный вариант)
Инженерные сети [?]8000 руб.
Паспорт проекта5000 руб.
Цветные фасады формата А4500 руб.
Стоимость строительства в вашем регионе получить предложение

Существует зеркальный вариант проекта.

Похожие проекты (4 шт.):
 
40-08 :: 274.1 м2
кирпич
39-66 :: 379.5 м2
кирпич
63-65 :: 429.1 м2
ячеистый бетон
43-38 :: 492.1 м2
кирпич
 

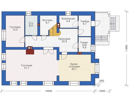
План первого этажа
Планировка первого этажа :: Проект дома из кирпича 37-83

План мансардного этажа
Планировка мансардного этажа :: Проект дома из кирпича 37-83

Высота дома
Высота этажей в проекте дома из кирпича 37-83



Обсудить проект этого коттеджа в форуме

Прямая ссылка на проект этого дома

Все материалы и размеры, указанные в каталоге и на сайте, не могут использоваться при строительстве дома без приобретения рабочей документации. Отдельно продажу паспорта проекта без приобретения основного комплекта рабочих чертежей мы не осуществляем.

Просим обратить внимание, что для любого проекта дома может потребоваться корректировка конструкций фундамента и ограждающих конструкций (наружных стен) с учетом геологических особенностей Вашего участка (песок, глина, уровень грунтовых вод) и климатического пояса, а также разделов ИС (инженерные сети) с учетом технических условий места застройки.

Стоимость строительства

Примерную стоимость строительства дома по выбранному проекту можно узнать, заполнив заявку на специальной странице. Подробно заполненная заявка позволит получить Вам персональные предложения от строителей и строительных компаний именно вашего региона!

Нашли такой же проект на другом сайте?
У нас вы купите его дешевле!
Пришлите ссылку на сайт с этим проектом** и получите скидку.
** Предложение относится только к проектам, подлинность которых подтверждена голограммой с уникальным номером.
Разница — не только в цене

Проект с голограммой гарантирует ответственность проектировщика за правильность чертежей.
Вы всегда сможете обратиться к автору проекта за необходимыми разъяснениями.

Мы постоянно совершенствуем проектную документацию. Поэтому даже те проекты, которые находятся в продаже несколько лет, сегодня имеют обновленные чертежи.
Если же вы покупаете контрафактный проект, то рискуете получить устаревшую или некорректную документацию, а претензии по качеству предъявить будет некому.

Сэкономив несколько тысяч рублей на покупке документации, вы рискуете потерять сотни тысяч при строительстве, исправляя ошибки контрафактного проекта.
Ваш будущий дом стоит подлинного, грамотного авторского проекта!

* - на правах рекламы


Краткая характеристика проекта: дом с мансардой 17x11 (17 на 11 м), общей площадью 256 кв.м, из кирпича, с котельной, с кухней-столовой.

Разделы АР и КР составляют архитектурно-строительную часть документации (АС), которая содержит общие данные по проекту:
  • поэтажные планы,
  • фасады,
  • разрезы,
  • ведомости оконных и дверных заполнений,
  • фундаменты,
  • планы перекрытий этажей,
  • планы стропил,
  • основные конструктивные узлы и детали,
  • расход материалов.
Раздел ИС включает в себя:
  • водоснабжение и канализация (ВК),
  • электрооборудование (ЭО),
  • отопление и вентиляция (ОВ).

Проект дома – это рабочие чертежи для строительства дома.

Приобретение готового проекта дома поможет избежать массы проблем и получить главные преимущества, такие как:

  • точный расход материалов для просчета сметы (что страхует заказчика от увеличения стоимости строительства и позволяет контролировать закупки),
  • строительство дома по проверенному временем проекту,
  • консультация проектировщика по всем вопросам на любом этапе строительства,
  • гарантия качества проработки рабочей документации,
  • получение разрешения на строительство дома по проекту в районной архитектуре,
  • а также вместо дорогостоящего индивидуального проектирования позволит сравнительно недорого сделать адаптацию в готовом проекте под условия заказчика.

Ранее просмотренные проекты (1 шт.):
 
Проект коттеджа 45-54
























    наверх
 
Планс.Ру - проекты домов в Краснодаре, проекты коттеджей.
Контактная информация
Рейтинг@Mail.ru
Дизайн-бюро Itlooks