На главную Контактная информация Карта сайта
        Проекты коттеджей :: Интернет-магазин Plans.ru :: Готовые проекты домов  
   
     
   
     
 
 
Предыдущий проект
Проект коттеджа 44-51 44-51

Проект кирпичного дома 44-51

Цена, руб. 71500 [?]
Следующий проект

Проект коттеджа 43-50

ИНТЕРЬЕР (от франц . interieur - внутренний), в архитектуре - внутреннее пространство здания или помещение в здании (вестибюль, комната, зал). Изображение интерьера - жанр живописи.



Фасады дома:

Изображение фасада 1 :: Проект коттеджа 44-51

Изображение фасада 2 :: Проект коттеджа 44-51

Изображение фасада 3 :: Проект коттеджа 44-51

Изображение фасада 4 :: Проект коттеджа 44-51









 
Фото проекта дома из кирпича 44-51

Общая площадь: 624.7 кв.м  
Задать вопрос по проекту дома 44-51 Заказать проект коттеджа 44-51 Посмотреть зеркальный вариант проекта Фирмы для расчета смет

Наружные стеныкирпич
Фундаментмонолитная ж/б плита
Перекрытияж/б плиты
Кровлямансардная
Покрытие кровлимягкая черепица, медь Керамическая черепица TONDACH *
Наружная отделка
декоративная штукатурка, плитка, мозаикаДекоративный камень и кирпич "КРАСНЫЙ КАМЕНЬ"*
Цоколь
натуральный каменьДекоративный камень и кирпич "КРАСНЫЙ КАМЕНЬ"*
Цена 
АР+КР (архитектурные решения, конструктивные решения) [?] [Пример проекта]71500 руб. (есть зеркальный вариант)
Паспорт проекта9750 руб.
Цветные фасады формата А4500 руб.
Стоимость строительства в вашем регионе получить предложение

+ террасы - 67,1 кв.м

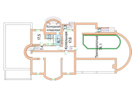
План цокольного этажа
Планировка цокольного этажа :: Проект дома из кирпича 44-51

План первого этажа
Планировка первого этажа :: Проект дома из кирпича 44-51

План второго этажа
Планировка второго этажа :: Проект дома из кирпича 44-51

Высота дома
Высота этажей в проекте дома из кирпича 44-51



Обсудить проект этого коттеджа в форуме

Прямая ссылка на проект этого дома

Просим обратить внимание на то, что в состав любого готового проекта могут входить разделы АС (архитектурно-строительная часть) и ИС (инженерные сети), либо только АС, без ИС. Уточнить состав проекта можно по телефону в Краснодаре или отправив запрос по электронной почте.

Все материалы и размеры, указанные в каталоге и на сайте, не могут использоваться при строительстве дома без приобретения рабочей документации. Отдельно продажу паспорта проекта без приобретения основного комплекта рабочих чертежей мы не осуществляем.

Просим обратить внимание, что для любого проекта дома может потребоваться корректировка конструкций фундамента и ограждающих конструкций (наружных стен) с учетом геологических особенностей Вашего участка (песок, глина, уровень грунтовых вод) и климатического пояса, а также разделов ИС (инженерные сети) с учетом технических условий места застройки.

Стоимость строительства

Примерную стоимость строительства дома по выбранному проекту можно узнать, заполнив заявку на специальной странице. Подробно заполненная заявка позволит получить Вам персональные предложения от строителей и строительных компаний именно вашего региона!

* - на правах рекламы


Краткая характеристика проекта: двухэтажный дом с цоколем 15x35 (15 на 35 м), общей площадью 624 кв.м, из кирпича, с гаражом, со вторым светом, с бассейном, с террасой, с котельной, с кухней-столовой.

Разделы АР и КР составляют архитектурно-строительную часть документации (АС), которая содержит общие данные по проекту:
  • поэтажные планы,
  • фасады,
  • разрезы,
  • ведомости оконных и дверных заполнений,
  • фундаменты,
  • планы перекрытий этажей,
  • планы стропил,
  • основные конструктивные узлы и детали,
  • расход материалов.
Раздел ИС включает в себя:
  • водоснабжение и канализация (ВК),
  • электрооборудование (ЭО),
  • отопление и вентиляция (ОВ).

Проект дома – это рабочие чертежи для строительства дома.

Приобретение готового проекта дома поможет избежать массы проблем и получить главные преимущества, такие как:

  • точный расход материалов для просчета сметы (что страхует заказчика от увеличения стоимости строительства и позволяет контролировать закупки),
  • строительство дома по проверенному временем проекту,
  • консультация проектировщика по всем вопросам на любом этапе строительства,
  • гарантия качества проработки рабочей документации,
  • получение разрешения на строительство дома по проекту в районной архитектуре,
  • а также вместо дорогостоящего индивидуального проектирования позволит сравнительно недорого сделать адаптацию в готовом проекте под условия заказчика.

Ранее просмотренные проекты (1 шт.):
 
Проект коттеджа 36-23
























    наверх
 
Планс.Ру - проекты домов в Краснодаре, проекты коттеджей.
Контактная информация
Рейтинг@Mail.ru
Дизайн-бюро Itlooks