На главную Контактная информация Карта сайта
        Проекты коттеджей :: Интернет-магазин Plans.ru :: Готовые проекты домов  
   
     
   
     
 
 
Предыдущий проект
Проект коттеджа 51-13 51-13

Проект дома из пеноблоков 51-13

Цена, руб. 18150 [?]
Следующий проект

Проект коттеджа 66-37

КОТТЕДЖ (англ . cottage), одноквартирный индивидуальный городской или сельский жилой дом с участком земли. Коттедж - традиционный тип английского жилища, распространившийся в европейских странах и США, имеет обычно 2 этажа.



Фасады дома:

Изображение фасада 1 :: Проект коттеджа 51-13

Изображение фасада 2 :: Проект коттеджа 51-13

Изображение фасада 3 :: Проект коттеджа 51-13

Изображение фасада 4 :: Проект коттеджа 51-13









 
Фото проекта дома из газобетона 51-13

Общая площадь: 149.5 кв.м На DVD
"Проекты коттеджей с объемными моделями и планами N1/2017" присутствует:


Имеется 3D-модель дома в каталоге
Задать вопрос по проекту дома 51-13 Заказать проект коттеджа 51-13 Фирмы для расчета смет

Наружные стеныгазобетон Газобетонные блоки AEROC *
Фундаментмонолитный ж/б
Перекрытияпо деревянным балкам
Кровлямансардная
Покрытие кровлиметаллочерепица Керамическая черепица TONDACH *
Наружная отделка
штукатуркаДекоративный камень и кирпич "КРАСНЫЙ КАМЕНЬ"*
Цоколь
натуральный каменьДекоративный камень и кирпич "КРАСНЫЙ КАМЕНЬ"*
Цена 
АР+КР (архитектурные решения, конструктивные решения) [?] [Пример проекта]18150 руб.
Паспорт проекта5000 руб.
Цветные фасады формата А4500 руб.
Стоимость строительства в вашем регионе получить предложение


План первого этажа
Планировка первого этажа :: Проект дома из газобетона 51-13

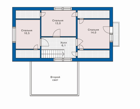
План мансардного этажа
Планировка мансардного этажа :: Проект дома из газобетона 51-13

Высота дома
Высота этажей в проекте дома из газобетона 51-13



Обсудить проект этого коттеджа в форуме

Прямая ссылка на проект этого дома

Все материалы и размеры, указанные в каталоге и на сайте, не могут использоваться при строительстве дома без приобретения рабочей документации. Отдельно продажу паспорта проекта без приобретения основного комплекта рабочих чертежей мы не осуществляем.

Просим обратить внимание, что для любого проекта дома может потребоваться корректировка конструкций фундамента и ограждающих конструкций (наружных стен) с учетом геологических особенностей Вашего участка (песок, глина, уровень грунтовых вод) и климатического пояса, а также разделов ИС (инженерные сети) с учетом технических условий места застройки.

Стоимость строительства

Примерную стоимость строительства дома по выбранному проекту можно узнать, заполнив заявку на специальной странице. Подробно заполненная заявка позволит получить Вам персональные предложения от строителей и строительных компаний именно вашего региона!

* - на правах рекламы


Краткая характеристика проекта: дом с мансардой 11x10 (11 на 10 м), общей площадью 149 кв.м, из газобетона (пеноблоков), со вторым светом, с террасой.

Разделы АР и КР составляют архитектурно-строительную часть документации (АС), которая содержит общие данные по проекту:
  • поэтажные планы,
  • фасады,
  • разрезы,
  • ведомости оконных и дверных заполнений,
  • фундаменты,
  • планы перекрытий этажей,
  • планы стропил,
  • основные конструктивные узлы и детали,
  • расход материалов.
Раздел ИС включает в себя:
  • водоснабжение и канализация (ВК),
  • электрооборудование (ЭО),
  • отопление и вентиляция (ОВ).

Проект дома – это рабочие чертежи для строительства дома.

Приобретение готового проекта дома поможет избежать массы проблем и получить главные преимущества, такие как:

  • точный расход материалов для просчета сметы (что страхует заказчика от увеличения стоимости строительства и позволяет контролировать закупки),
  • строительство дома по проверенному временем проекту,
  • консультация проектировщика по всем вопросам на любом этапе строительства,
  • гарантия качества проработки рабочей документации,
  • получение разрешения на строительство дома по проекту в районной архитектуре,
  • а также вместо дорогостоящего индивидуального проектирования позволит сравнительно недорого сделать адаптацию в готовом проекте под условия заказчика.

Ранее просмотренные проекты (1 шт.):
 
Проект коттеджа 55-21
























    наверх
 
Планс.Ру - проекты домов в Краснодаре, проекты коттеджей.
Контактная информация
Рейтинг@Mail.ru
Дизайн-бюро Itlooks